Réalisation Architecte d’intérieur Paris
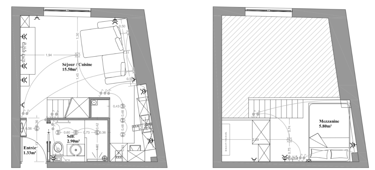
MONTORGUEIL I 75002, petit duplex entièrement sur mesure
Duplex dans immeuble ancien 1910
Date de démarrage : 01 Décembre 2025
Date de livraison : 30 Avril 2025
Maîtrise d’ouvrage : Particuliers
Budget : Confidentiel
Projet d’étude : étude complexe
Restructuration totale de l’existant
Climatisation à eau
Salle d’eau italienne
Cuisine entièrement sur mesure
Agencements intégrés & dressings par HD
Luminaires de chez NOVALUCE
Mitigeurs OR ROSE
Finition WALLCOVERINGS ARTE & laque mâte FLAMANT
Mobilier de chez MINOTTI




